Araxá, MG
Araxá, MG
Araxá, MG
0 m²
0 m²
0 m²
Residência M.A
Residência contemporânea em estrutura metálica, alto padrão, com integração total, piscina e lazer completo.
Residência M.A
Residência contemporânea em estrutura metálica, alto padrão, com integração total, piscina e lazer completo.

Residência M.A
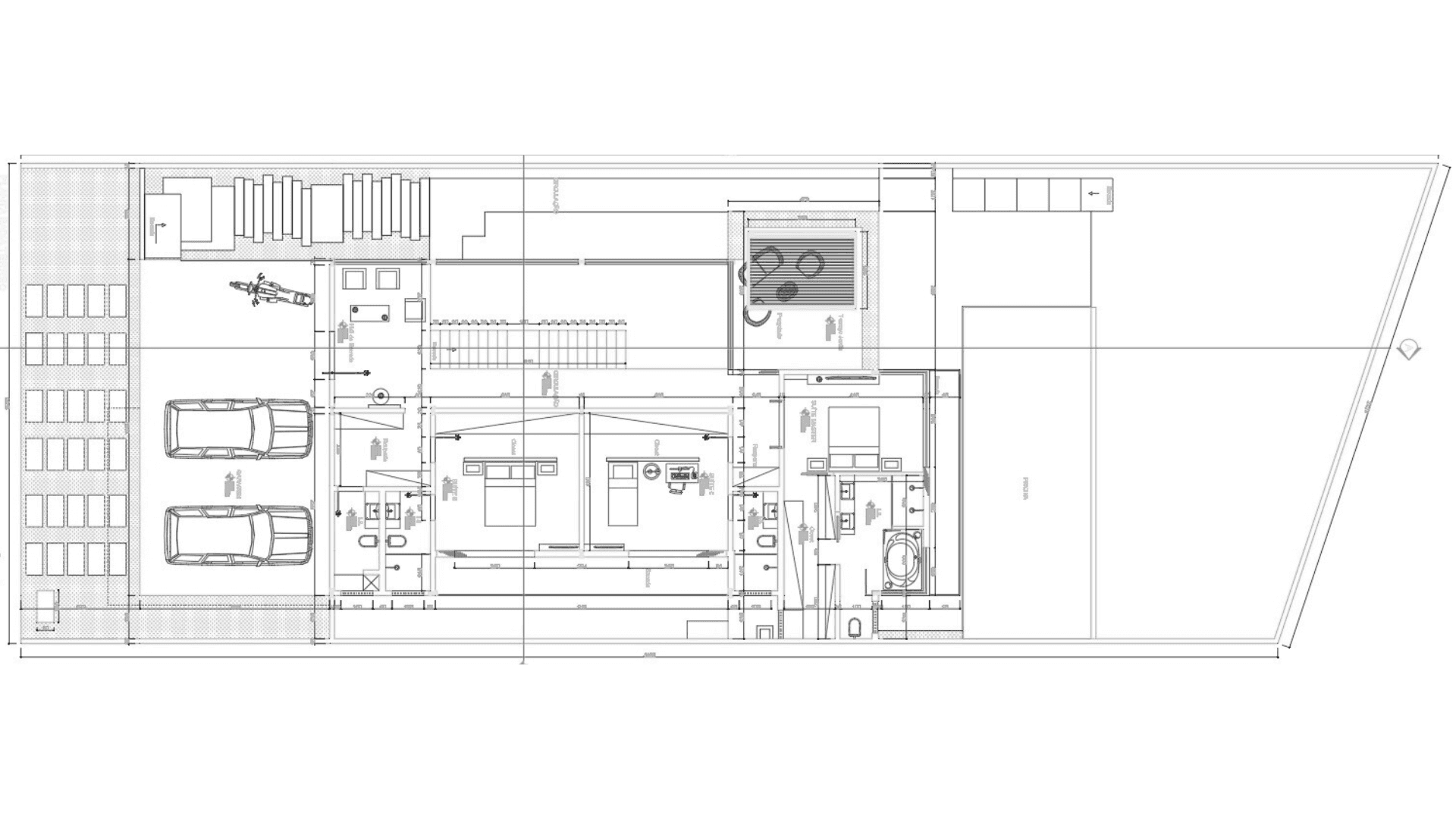
A Residência M.A. é um projeto contemporâneo em estrutura metálica com estilo industrial, concebido como uma casa de alto padrão que valoriza o concreto aparente, o paisagismo e a integração entre arquitetura e natureza. A proposta alia estética marcante, tecnologia construtiva e soluções bioclimáticas para proporcionar conforto e sofisticação em todos os ambientes.
A Residência M.A. é um projeto contemporâneo em estrutura metálica com estilo industrial, concebido como uma casa de alto padrão que valoriza o concreto aparente, o paisagismo e a integração entre arquitetura e natureza. A proposta alia estética marcante, tecnologia construtiva e soluções bioclimáticas para proporcionar conforto e sofisticação em todos os ambientes.
A funcionalidade foi cuidadosamente planejada para que cada espaço atenda plenamente às necessidades do dia a dia, promovendo integração harmoniosa entre área íntima e social. Grandes aberturas garantem iluminação natural abundante e conexão visual com o exterior. Brises estratégicos minimizam a incidência solar direta, contribuindo para o controle térmico e eficiência energética da residência.
A funcionalidade foi cuidadosamente planejada para que cada espaço atenda plenamente às necessidades do dia a dia, promovendo integração harmoniosa entre área íntima e social. Grandes aberturas garantem iluminação natural abundante e conexão visual com o exterior. Brises estratégicos minimizam a incidência solar direta, contribuindo para o controle térmico e eficiência energética da residência.
A área social integra cozinha, sala de estar e jantar e espaço gourmet, criando um ambiente amplo e acolhedor. A casa conta com hall de entrada imponente, quatro dormitórios e uma área de lazer completa, com jardim, piscina de borda infinita e espaço para fogueira ao ar livre. O deck no nível superior amplia as possibilidades de descanso e contemplação, enquanto a lareira aberta proporciona conforto térmico no inverno, tornando o projeto equilibrado e funcional em todas as estações do ano.
A área social integra cozinha, sala de estar e jantar e espaço gourmet, criando um ambiente amplo e acolhedor. A casa conta com hall de entrada imponente, quatro dormitórios e uma área de lazer completa, com jardim, piscina de borda infinita e espaço para fogueira ao ar livre. O deck no nível superior amplia as possibilidades de descanso e contemplação, enquanto a lareira aberta proporciona conforto térmico no inverno, tornando o projeto equilibrado e funcional em todas as estações do ano.










continue explorando
continue explorando


