Araxá, MG
Araxá, MG
Araxá, MG
0 m²
0 m²
0 m²
Office Business
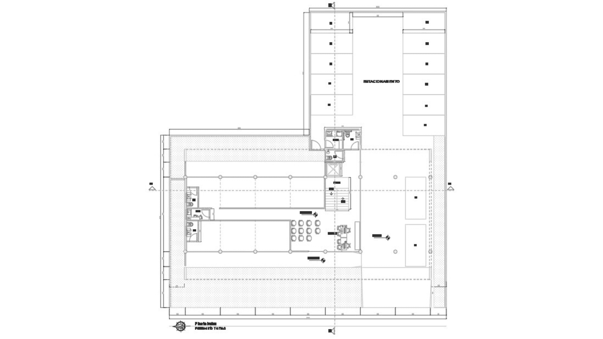
Projeto comercial em estrutura metálica, sustentável e eficiente, participante do Prêmio Saint-Gobain 2020.
Office Business
Projeto comercial em estrutura metálica, sustentável e eficiente, participante do Prêmio Saint-Gobain 2020.

Office Business
O Office Business é um projeto arquitetônico comercial desenvolvido em estrutura metálica, com foco na otimização da execução, agilidade construtiva e desempenho técnico. A proposta une linguagem contemporânea e soluções inteligentes, resultando em um espaço corporativo moderno e funcional.
O Office Business é um projeto arquitetônico comercial desenvolvido em estrutura metálica, com foco na otimização da execução, agilidade construtiva e desempenho técnico. A proposta une linguagem contemporânea e soluções inteligentes, resultando em um espaço corporativo moderno e funcional.
Com forte conceito sustentável, o projeto foi participante do Prêmio Saint-Gobain em 2020, destacando-se pelas estratégias de eficiência energética, uso de materiais termoacústicos, ventilação natural cruzada, elevada permeabilidade do terreno, sistema de captação e reserva de água da chuva e alta geração de energia. Cada solução foi pensada para reduzir impactos ambientais e melhorar o desempenho da edificação.
Com forte conceito sustentável, o projeto foi participante do Prêmio Saint-Gobain em 2020, destacando-se pelas estratégias de eficiência energética, uso de materiais termoacústicos, ventilação natural cruzada, elevada permeabilidade do terreno, sistema de captação e reserva de água da chuva e alta geração de energia. Cada solução foi pensada para reduzir impactos ambientais e melhorar o desempenho da edificação.
Além da eficiência técnica, o empreendimento conta com amplo espaço de lazer e áreas voltadas à realização de negócios, promovendo integração entre trabalho, convivência e bem-estar. Um projeto que alia inovação, sustentabilidade e performance arquitetônica em um único conceito.
Além da eficiência técnica, o empreendimento conta com amplo espaço de lazer e áreas voltadas à realização de negócios, promovendo integração entre trabalho, convivência e bem-estar. Um projeto que alia inovação, sustentabilidade e performance arquitetônica em um único conceito.





continue explorando
continue explorando


