Araxá, MG
Araxá, MG
Araxá, MG
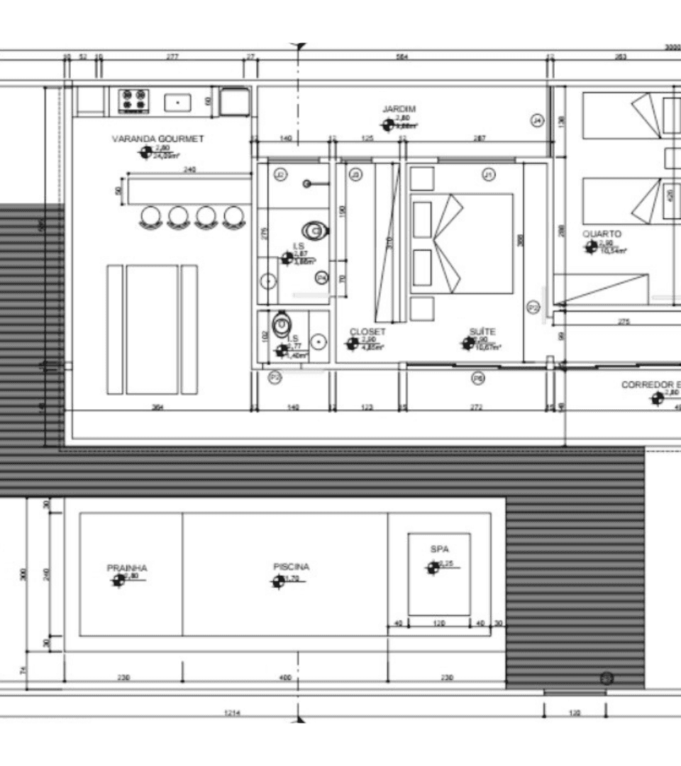
286 m²
286 m²
286 m²
Casa C.L
Residência contemporânea com tijolo ecológico e tons naturais, integrando arquitetura e paisagismo.
Casa C.L
Residência contemporânea com tijolo ecológico e tons naturais, integrando arquitetura e paisagismo.

Casa C.L
A Casa R.L. é um projeto de arquitetura simples e contemporânea, que valoriza a autenticidade dos materiais e a harmonia entre construção e natureza. A proposta adota o tijolo ecológico como elemento principal, evidenciando sustentabilidade e identidade estética.
A Casa R.L. é um projeto de arquitetura simples e contemporânea, que valoriza a autenticidade dos materiais e a harmonia entre construção e natureza. A proposta adota o tijolo ecológico como elemento principal, evidenciando sustentabilidade e identidade estética.
A composição utiliza tons naturais que dialogam com o verde do paisagismo, criando equilíbrio visual e sensação de acolhimento. A cerâmica do tijolo, aliada às texturas orgânicas, reforça a proposta de uma residência com linguagem arquitetônica limpa e atemporal.
A composição utiliza tons naturais que dialogam com o verde do paisagismo, criando equilíbrio visual e sensação de acolhimento. A cerâmica do tijolo, aliada às texturas orgânicas, reforça a proposta de uma residência com linguagem arquitetônica limpa e atemporal.
O resultado é uma casa funcional, com estética leve e integrada ao entorno, onde materialidade e natureza se complementam para formar um conjunto harmonioso e contemporâneo.
O resultado é uma casa funcional, com estética leve e integrada ao entorno, onde materialidade e natureza se complementam para formar um conjunto harmonioso e contemporâneo.





continue explorando
continue explorando



