Araxá, MG
Araxá, MG
Araxá, MG
0 m²
0 m²
0 m²
Armazém Fit Store
Projeto comercial com tons claros, verde natural e iluminação aconchegante, alinhado ao padrão da franquia.
Armazém Fit Store
Projeto comercial com tons claros, verde natural e iluminação aconchegante, alinhado ao padrão da franquia.

Armazém Fit Store
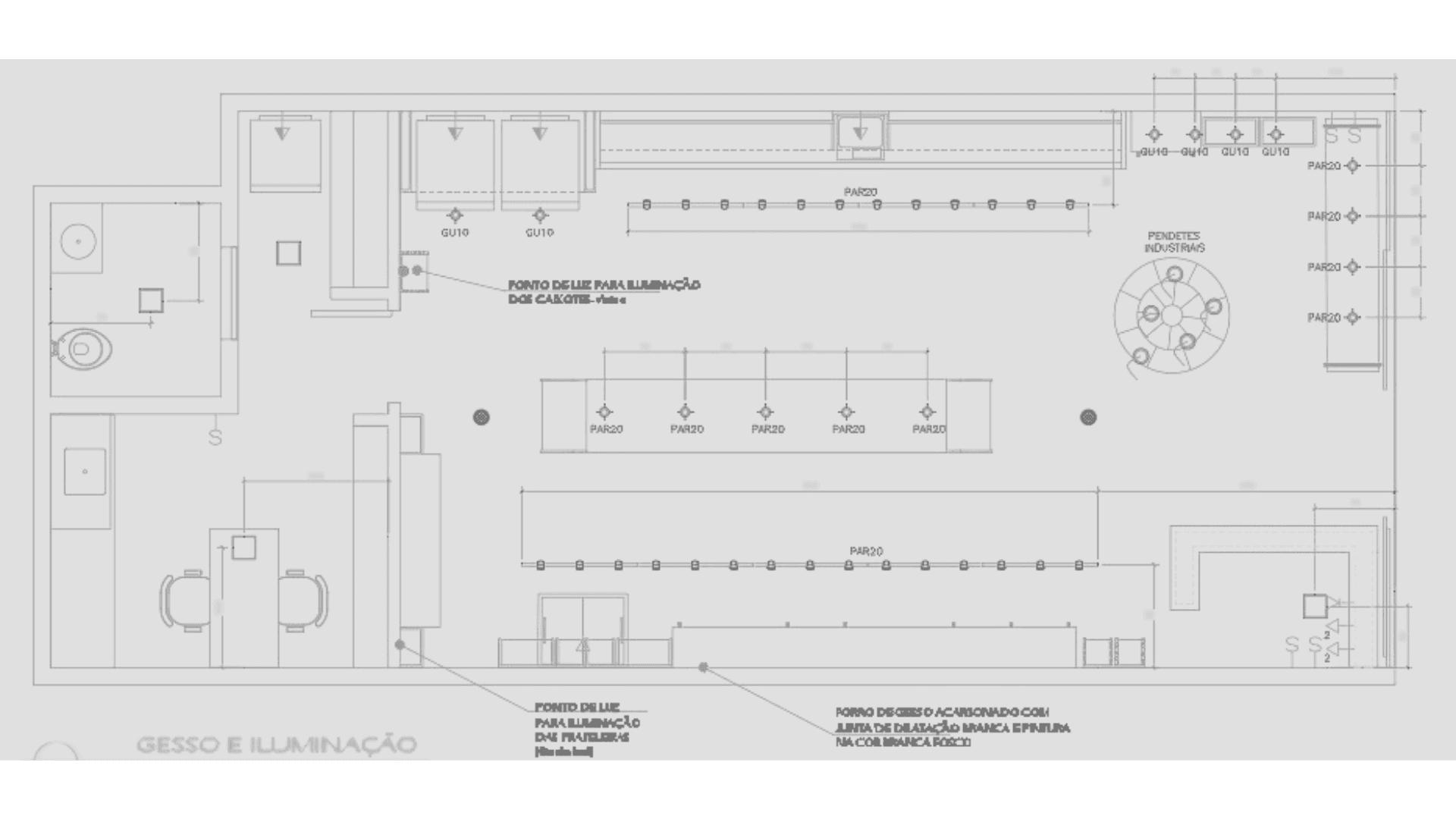
O projeto do Armazém Fit Store foi desenvolvido com base em cores claras e texturas naturais nos revestimentos, criando um ambiente leve, organizado e visualmente agradável. A presença marcante de plantas naturais reforça a identidade saudável da marca, enquanto a iluminação quente proporciona sensação de acolhimento e conforto ao cliente.
O projeto do Armazém Fit Store foi desenvolvido com base em cores claras e texturas naturais nos revestimentos, criando um ambiente leve, organizado e visualmente agradável. A presença marcante de plantas naturais reforça a identidade saudável da marca, enquanto a iluminação quente proporciona sensação de acolhimento e conforto ao cliente.
Os detalhes em madeira e ferro agregam personalidade ao espaço, equilibrando modernidade e naturalidade. A composição material foi pensada para valorizar os produtos e ao mesmo tempo criar uma experiência sensorial positiva, tornando o ambiente mais convidativo e funcional.
Os detalhes em madeira e ferro agregam personalidade ao espaço, equilibrando modernidade e naturalidade. A composição material foi pensada para valorizar os produtos e ao mesmo tempo criar uma experiência sensorial positiva, tornando o ambiente mais convidativo e funcional.
A definição do layout exigiu compatibilizar o projeto original da franquia com as características do novo espaço disponível, garantindo coerência com a identidade da marca. O desafio foi unir padrão, funcionalidade e estética, resultando em um ambiente harmonioso que proporciona satisfação aos clientes e eficiência operacional ao Armazém Fit Store.
A definição do layout exigiu compatibilizar o projeto original da franquia com as características do novo espaço disponível, garantindo coerência com a identidade da marca. O desafio foi unir padrão, funcionalidade e estética, resultando em um ambiente harmonioso que proporciona satisfação aos clientes e eficiência operacional ao Armazém Fit Store.






continue explorando
continue explorando



